Lichtontwerptekening
Verander je plattegrond in een opvallend 2D- of 3D- lichtplan dat je ontwerp tot leven brengt.


Professioneel lichtontwerp voor je project
Je plattegronden worden omgezet in nauwkeurige, productgedetailleerde 2D- en 3D-lichtontwerpen die je helpen projecten binnen te halen en indruk te maken op je klanten.
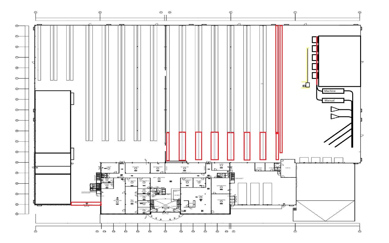
Wat is een lichtontwerptekening?
Een lichtontwerptekening laat precies zien hoe het licht in je project zal werken, nog voordat er ook maar één armatuur is geïnstalleerd. Het omvat de ideale plaatsing, het aantal en het type armaturen op basis van je bouwtekeningen, de afmetingen van de ruimte en het gewenste resultaat.
Of je nu werkt aan een kantoor, magazijn, school of winkelruimte, een professioneel lichtplan zorgt voor een perfecte balans tussen functionaliteit, comfort en energie-efficiëntie.
Wat ontvang je?
Wanneer je een lichtplan aanvraagt, ontvang je:
-
Een 2D- en/of 3D-lichttekening ontworpen in Dialux Evo.
-
Een compleet boekje met productinformatie, technische specificaties en hoeveelheden.
-
Conformiteit met de Europese verlichtingsrichtlijnen, zoals de norm NBN-EN 12464-1.
- Deskundig advies van onze lichtexperts, gericht op professionele resultaten, niet op giswerk.
Onze experts werken uitsluitend aan lichtontwerpen en zorgen ervoor dat je plan voldoet aan zowel technische als esthetische eisen.




Wat hebben we van je nodig?
Om te starten met je ontwerp, hebben je accountmanager en onze experts het volgende nodig:
-
Bouwtekeningen of plattegronden (inclusief kamerhoogtes).
-
Projectbudget en eventuele functionele of esthetische voorkeuren.
-
Optioneel: gewenste armatuurstijlen of decoratieve opties.
Op basis van deze informatie bepalen onze experts welke producten en hoeveel daarvan nodig zijn.
Hoe werkt het?
-
Neem contact op met je accountmanager om je project te bespreken en te controleren of je in aanmerking komt.
-
Lever je tekeningen en gegevens aan: plattegronden, lichtdoelen, voorkeuren, budget etc.
-
Onze lichtontwerpers maken je plan: van 2D-lay-outs tot volledige 3D-visualisaties.
-
Ontvang je ontwerp- en productboekje: klaar om aan je klant te presenteren of in een offerte op te nemen.


Onze lichtexperts helpen je graag verder!
Bel je accountmanager rechtstreeks om je aanstaande project te bespreken en direct advies te krijgen. Of vul je gegevens in, dan bellen we je om aan de slag te gaan. Hoe dan ook, we staan klaar om je te ondersteunen, van het eerste ontwerp tot de uiteindelijke installatie.

